NDKビル/7階E [No.9075] 募集中
| 人気エリア万代の一等地に経つオフィスビルです。駐車場も完備(有料) | |||
| 可能業種 | 事務所 美容室・エステ・サロン・マッサージ・整体・歯科・病院・クリニック・介護・フィットネス・スポーツジム 学習塾・英会話・カルチャースクール・将棋・囲碁 | ||
|---|---|---|---|
| 物件所在地 | 新潟市中央区万代1-3-7 | ||
| 賃料 | 299717円 | 管理費/町会費 | 家賃に含む/不要 |
| 敷金/礼金 | 12ヶ月/1ヶ月 | 建物構造 | SRC造 |
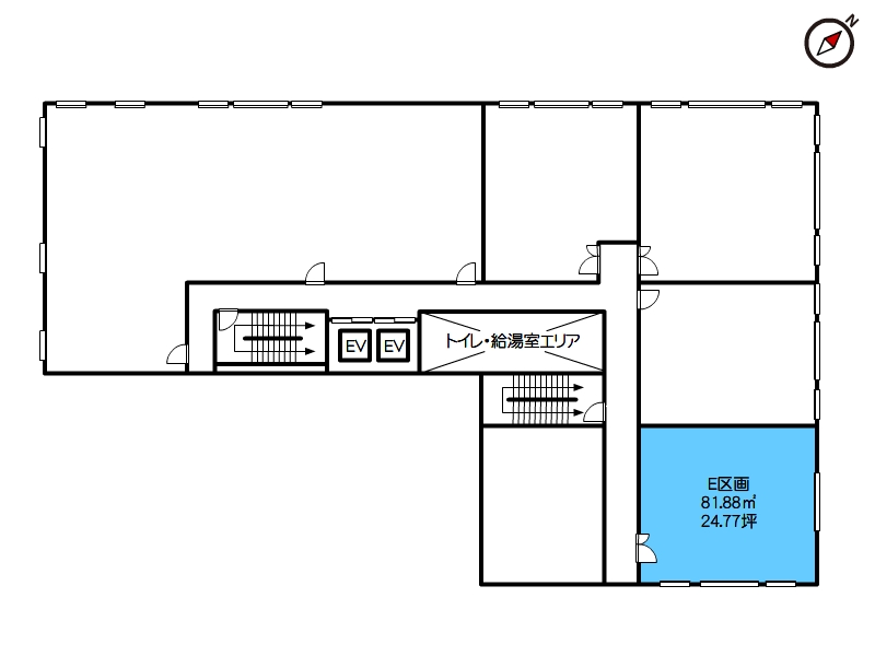
| 面積 | 81.88㎡(24.8坪) | 築年数 | 築34年 |
| 階数 | 3階/8階建 | 駐車場/駐車料 | 敷地内あり/22000 |
| 保険加入 | 加入必須 | ||
| 家賃保証 | 相談 | ||
| 契約種類 | 普通借家契約 | 契約期間/更新費 | 2年/不要 |
| 取引態様 | 一般媒介 | 入居可能日 | 相談 |
| その他諸経費 | 電気料金33,000円/月 | ||
| トイレ・水廻り | 共用トイレ・男女別・洋式・複数便器あり・給湯器 | ||
| キッチン | 共用シンク | ||
| 設備・機能 | 都市ガス | ||
| 空調・エアコン | エアコン・エアコン2台以上 | ||
| 通信 | インターネット可 | ||
| セキュリティー | 防犯カメラ・24時間セキュリティー | ||
| 共用設備 | エレベーター2基以上 | ||
| パノラマ画像 | |||
| 地図 | |||
| 特記事項 | オフィス利用 美容室・サロン 塾・教室 看板設置可能 | ||
| 更新日時 |
登録:2025年07月25日 10時41分 更新:2025年11月25日 11時42分 |
||
新潟市賃貸12ヶ月【NDKビル/7階E】新潟市中央区万代1-3-7















